
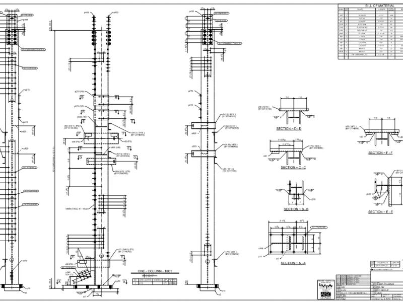
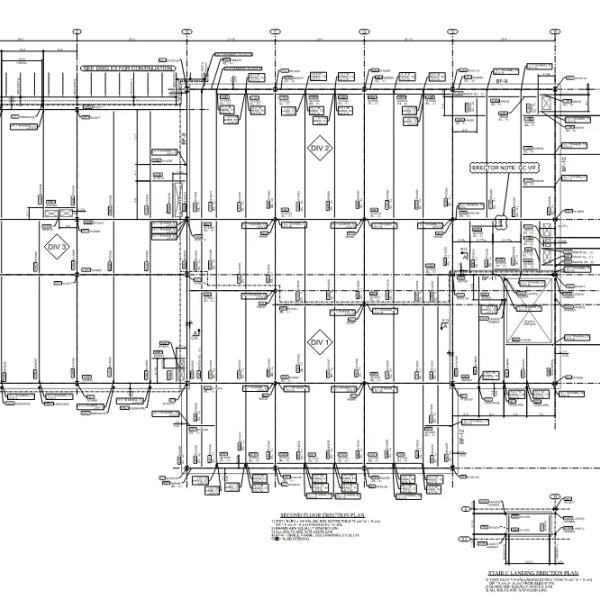
Structural Steel Detailing
Anyone can learn to use a software platform, but the software doesn't have the fabricator's best interest in mind. It won't tell you what information the shop needs, what is more economical, or if it can be erected. It takes experience and skill to detail a structure with your success as a priority. Let us show you how our expertise can help your projects succeed.
- 30+ Years Detailing
- 1,000+ Projects Completed
- 175,000+ tons of steel detailed
As a seasoned structural detailer with years of experience, we bring a comprehensive understanding of complex structural systems, meticulous attention to detail, and expert proficiency in TEKLA to every project. Whether commercial, industrial, structural, or miscellaneous steel detailing, our team will work closely with your team from the initial kick-off meeting to the final as-built drawings. We pride ourselves on collaborating closely with engineers and contractors to deliver seamless BIM coordination and timely project completion. Our deep knowledge of fabrication processes ensures efficient construction while maintaining the highest standards of structural integrity.
Service Gallery

